Terrain à vendre à Cergy La ZAC Liesse 2
Surface min
5 397 m²
La ZAC Liesse 2 est un programme mixte comprenant parc d'activités économiques et commerces, en pied de gare RER et Transilien et à proximité immédiate de l'A15 et de la Francilienne.
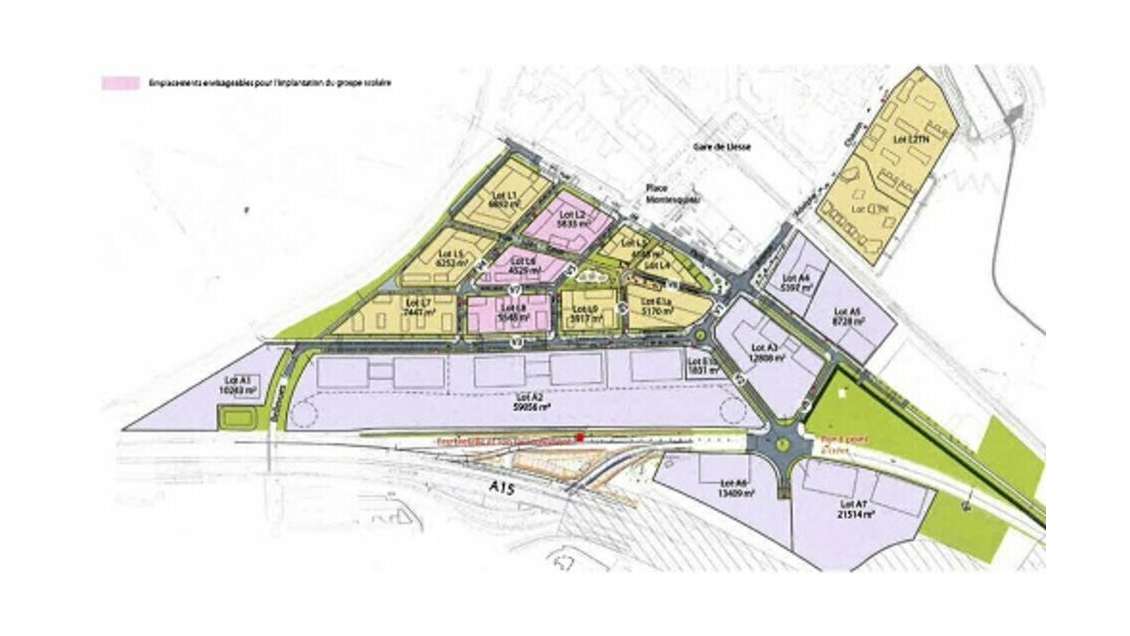
Elle occupe une surface totale de 45.6 ha, dont 13.5 ha seront consacrés aux activités économiques. Les secteurs d'activités ciblés sont : les services tertiaires, sièges sociaux industriels, bureaux d'études, centres de R&D, unité de production.
Les terrains à vocation économique sont répartis en 7 lots de 5 397 m² à 61 643 m².
A proximité se trouvent:
Elle occupe une surface totale de 45.6 ha, dont 13.5 ha seront consacrés aux activités économiques. Les secteurs d'activités ciblés sont : les services tertiaires, sièges sociaux industriels, bureaux d'études, centres de R&D, unité de production.
Les terrains à vocation économique sont répartis en 7 lots de 5 397 m² à 61 643 m².
A proximité se trouvent:
- Parc d'activités des Bellevues (200 entreprises et 4 500 salariés)
- Entreprises implantées : Sagem Défense Sécurité,Weiss Teknik France, Renault, La Poste, Weber France
Les informations sur les risques auxquels ce bien est exposé sont disponibles sur le site Géorisques :
Conditions
Disponibilité: Immédiate
Par la route :
- A proximité immédiate de l'A15 et de la Francilienne.
Par les transports en commun :
- Gare de Saint-Ouen l'Aumône -Liesse : ligne C du RER et ligne H du Transilien.
- Les lignes de bus 58 et 59 pour accès au pôle gare du Grand Centre de Cergy-Pontoise (RER A et ligne L du Transilien).
Données Financières
Surfaces et longueurs
Surface de 135 000 m²
Surface divisible
Surface divisible 5 397 m² minimum
Equipements
Emprise au sol : non réglementée, Hauteur maximale des constructions non réglementée, Calendrier viabilisation : mi 2024
Bilan énergétique
Diagnostic de performance énergétique (DPE)
N.C.
Catégorie N.C.
Le classement énergétique n'a pas été communiqué par l'annonceur.
Emplacement
Synthèse
A vendre Immobilier d'entreprise Terrains industriels et agricoles
Saint-Ouen-l'Aumône, Val-d'Oise (95), Île-de-France
Surface de 135 000 m²
Réactualisé le 23/05/2026
Référence CessionPME : 95_001253
Demander plus d'informations sur ce bien
Prix médian en immobilier professionnel dans le Val-d'Oise 95, rubrique Terrains industriels et agricoles
Prix bas
Prix médian
Prix haut

