Loue local commercial 565m² axe fréquenté à Angers
Loyer mensuel
4 825€
Surface
579 m²
Montant au m²
100€/m²/an
A LOUER
- Angers
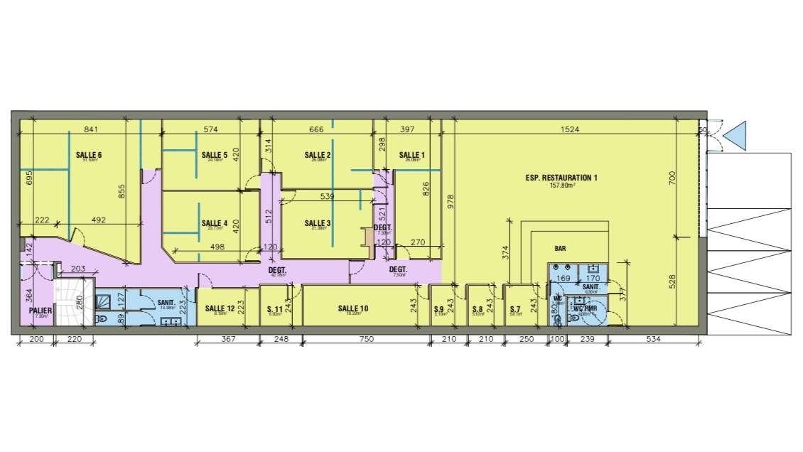
- Local commercial d'une surface d'environ 579 m2 situé en zone commerciale et proche enseignes nationales, comprenant : une surface de vente avec vitrine, un ensemble de pièces, des sanitaires, une pièce et une réserve d'environ 110 m2 Parking Travaux à prévoir
- Angers
- Local commercial d'une surface d'environ 579 m2 situé en zone commerciale et proche enseignes nationales, comprenant : une surface de vente avec vitrine, un ensemble de pièces, des sanitaires, une pièce et une réserve d'environ 110 m2 Parking Travaux à prévoir
Données Financières
Loyer mensuel : 4 825 € (99.96 €/m²/an)
Surfaces et longueurs
Surface de 579 m²
Copropriété
4 lots dans la copropriété
Bilan énergétique
Diagnostic de performance énergétique (DPE)
N.C.
Catégorie N.C.
Le classement énergétique n'a pas été communiqué par l'annonceur.
Emplacement
Synthèse
A louer Immobilier d'entreprise Locaux commerciaux - Boutiques
Angers, Maine-et-Loire (49), Pays de la Loire
Loyer mensuel : 4 825 € (99.96 €/m²/an)
Surface de 579 m²
Réactualisé le 28/04/2026
Référence CessionPME : 448_49366169
Demander plus d'informations sur ce bien
Loyer médian en immobilier professionnel dans le Maine-et-Loire 49, rubrique Locaux commerciaux - Boutiques
10 €/m²/mois
Loyer bas
14 €/m²/mois
Loyer médian
23 €/m²/mois
Loyer haut



