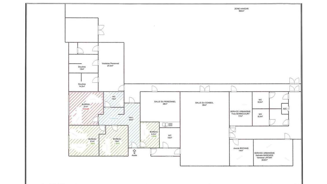
Local d'activité de 960m² à louer à Tarbes
Surface
960 m²
Disponible à la location, un local d'activité de 960 m² à Tarbes dans les Hautes-Pyrénées.
Les locaux sont accessibles PMR. À l'extérieur un parking est à disposition.
Les locaux sont accessibles PMR. À l'extérieur un parking est à disposition.
Les informations sur les risques auxquels ce bien est exposé sont disponibles sur le site Géorisques :
Données Financières
Surfaces et longueurs
Surface de 960 m²
Bilan énergétique
Diagnostic de performance énergétique (DPE)
N.C.
Catégorie N.C.
Le classement énergétique n'a pas été communiqué par l'annonceur.
Emplacement
Synthèse
A louer Immobilier d'entreprise Locaux d'activités - Entrepôts
Tarbes, Hautes-Pyrénées (65), Midi-Pyrénées
Surface de 960 m²
Réactualisé le 19/02/2026
Référence CessionPME : EAD22901617
Demander plus d'informations sur ce bien
Loyer médian en immobilier professionnel dans les Hautes-Pyrénées 65, rubrique Locaux d'activités - Entrepôts
3 €/m²/mois
Loyer bas
6 €/m²/mois
Loyer médian
8 €/m²/mois
Loyer haut

