Boutique à Tours
Loyer mensuel
3 000€
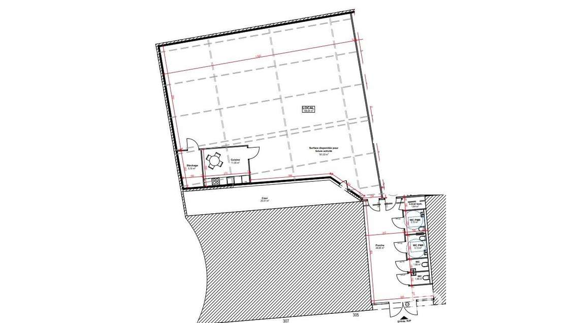
- À LOUER : Entrepôt entièrement rénové de 198 m² environ – A aménager selon vos besoins ! (Côté gauche sur le plan) Vous recherchez un espace fonctionnel et flexible pour votre activité ? Cet entrepôt de 198 m² environ, fraîchement rénové, est la solution idéale pour vos besoins professionnels ! Caractéristiques principales : Superficie : 198 m² environ, offrant un vaste espace pour stockage,. Aménagement : Espace brut à aménager selon vos besoins spécifiques (bureaux, zones de stockage, espaces de travail). Accessibilité : Facilement accessible par la route, avec une proximité immédiate des principaux axes de transport. Stationnement : Possibilité de stationnement à proximité Pourquoi choisir cet entrepôt ? Polyvalence : Que vous soyez artisan, commerçant ou une entreprise de logistique, cet espace s’adapte à vos besoins. Personnalisation : Créez un espace qui correspond parfaitement à votre activité et à vos équipes. Localisation stratégique : Centre ville de Tours Conditions de location : Loyer mensuel : 3000 Euros HC Charges : 300 Euros mensuel Disponibilité : 1 er Avril Information d'affichage énergétique sur le bien associé à cette annonce : DPE NS indice et GES NS indice. (ID 70459), Agent Commercial mandataire .
Les informations sur les risques auxquels ce bien est exposé sont disponibles sur le site Géorisques :
Données Financières
mandat exclusif
Loyer mensuel : 3 000 €
Honoraires : 9 000 €
Surfaces et longueurs
Bilan énergétique
Diagnostic de performance énergétique (DPE)
N.C.
Catégorie N.C.
Le classement énergétique n'a pas été communiqué par l'annonceur.
Emplacement
Synthèse
A louer Immobilier d'entreprise Locaux commerciaux - Boutiques
Tours, Indre-et-Loire (37), Centre
Loyer mensuel : 3 000 €
Réactualisé le 03/04/2026
Référence CessionPME : 1725029
Demander plus d'informations sur ce bien
Loyer médian en immobilier professionnel dans l'Indre-et-Loire 37, rubrique Locaux commerciaux - Boutiques
11 €/m²/mois
Loyer bas
17 €/m²/mois
Loyer médian
24 €/m²/mois
Loyer haut



