A louer Bureaux 146m² Fontenay sous bois
Loyer mensuel
1 464€
Surface
146 m²
Montant au m²
120€/m²/an
A Fontenay-sous-Bois, sur la zone du Plateau, Notre équipe vous propose une surface de bureau de 146m² non divisible, à proximité des stations RER A et E (Val de Fontenay).
Au rez-de-chaussée d'un immeuble neuf (fin des travaux Janvier 2026), proposé en état brut. Possibilité normes ERP.
Bus Danielle Casanova (118), M.-C. Vaillant Couturier (116), Le Parc (124) Grand Paris Express Val de Fontenay (L15 Horizon 2030) Autoroute A 86 (Entrée Fontenay Centre), A 86 (Sortie A 86)
Au rez-de-chaussée d'un immeuble neuf (fin des travaux Janvier 2026), proposé en état brut. Possibilité normes ERP.
Bus Danielle Casanova (118), M.-C. Vaillant Couturier (116), Le Parc (124) Grand Paris Express Val de Fontenay (L15 Horizon 2030) Autoroute A 86 (Entrée Fontenay Centre), A 86 (Sortie A 86)
Les informations sur les risques auxquels ce bien est exposé sont disponibles sur le site Géorisques :
Données Financières
Loyer mensuel : 1 464 € (120.36 €/m²/an)
Surfaces et longueurs
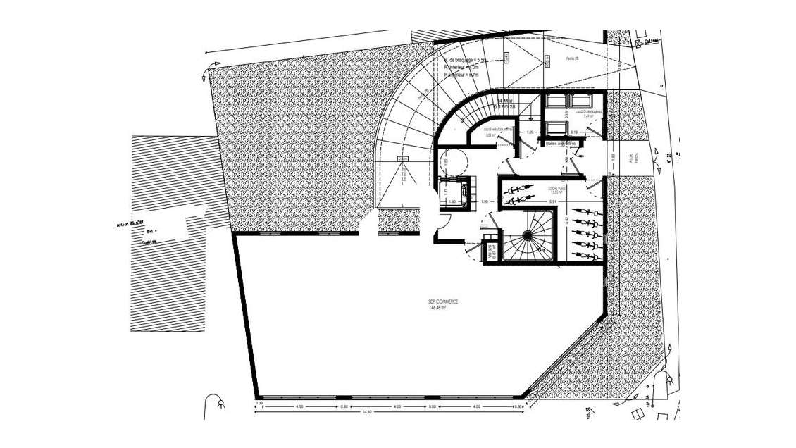
Surface : 146 m² non divisibles
| Étage | Bâtiment | Type | Surfaces | Disponibilité | Loyer | Charges | Honoraires | Fiscal | Bail | Révision annuelle | Prix | Charges | Honoraires | Fiscal | Paiement Loyer | lot | Coworking | |
|---|---|---|---|---|---|---|---|---|---|---|---|---|---|---|---|---|---|---|
| RDC | Bureaux | 146,48 | Immédiate | 120 m²/an HT HC | 30% HT du loyer annuel HT HC à la charge du preneur | T.V.A. (20%) | Bail Commercial 3-6-9 ans | selon l'indice des loyers des activités tertiaires (ILAT) | Trimestriel d'avance | |||||||||
| Total | 146,48 m² |
Equipements
. Accès véhicules légers
. Accès PMR
. Double accès
. Parties communes de qualité
. Digicode
. Interphone
. Accès sécurisé par badge
. Sas d'entrée
. Visiophone
. Climatisation réversible
. Fibre optique
. Possibilité de normes E.R.P.
. Sanitaires PMR & privatifs
. Open-space
. Chauffage par convecteurs électriques
Surface RDC : 146,48 m²
. Accès PMR
. Double accès
. Parties communes de qualité
. Digicode
. Interphone
. Accès sécurisé par badge
. Sas d'entrée
. Visiophone
. Climatisation réversible
. Fibre optique
. Possibilité de normes E.R.P.
. Sanitaires PMR & privatifs
. Open-space
. Chauffage par convecteurs électriques
Surface RDC : 146,48 m²
Bilan énergétique
Diagnostic de performance énergétique (DPE)
N.C.
Catégorie N.C.
Le classement énergétique n'a pas été communiqué par l'annonceur.
Emplacement
Synthèse
A louer Immobilier d'entreprise Bureaux
Fontenay-sous-Bois, Val-de-Marne (94), Île-de-France
Loyer mensuel : 1 464 € (120.36 €/m²/an)
Surface de 146 m²
Réactualisé le 04/04/2026
Référence CessionPME : 14210130E-0011L
Demander plus d'informations sur ce bien
Loyer médian en immobilier professionnel dans le Val-de-Marne 94, rubrique Bureaux
13 €/m²/mois
Loyer bas
16 €/m²/mois
Loyer médian
21 €/m²/mois
Loyer haut



