Local commercial à Saint-Nicolas-de-Port
Prix de vente
198 000€
- À VENDRE
- LOCAL COMMERCIAL
- 300 m² environ
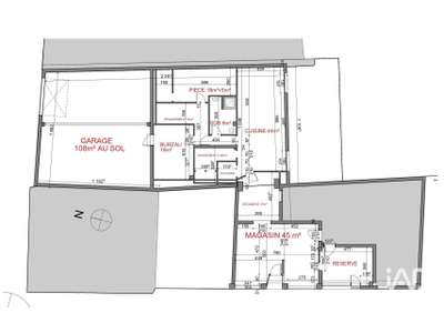
- SAINT-NICOLAS-DE-PORT Idéalement situé, nous vous proposons un local commercial de 300 m² environ au sol offrant de belles opportunités pour votre activité. Caractéristiques du bien :
- Surface totale : 300 m² environ au sol
- Espace de stockage spacieux
- Espace bureau aménagé et fonctionnel
- Configuration modulable selon vos besoins Ce local polyvalent convient parfaitement pour diverses activités commerciales, artisanales ou de services. L'agencement actuel permet une exploitation immédiate avec son bureau déjà équipé et son vaste espace de stockage. Pour toute visite ou information complémentaire, n'hésitez pas à nous contacter. Information d'affichage énergétique sur le bien associé à cette annonce : DPE NS indice et GES NS indice. Mlle (ID 84378), Agent Commercial mandataire du Tribunal de Commerce de Nancy sous le numéro 751310590 .
Les informations sur les risques auxquels ce bien est exposé sont disponibles sur le site Géorisques :
Données Financières
Prix de vente : 198000 €
Honoraires : information non communiquée par l'agence
Surfaces et longueurs
Bilan énergétique
Diagnostic de performance énergétique (DPE)
N.C.
Catégorie N.C.
Le classement énergétique n'a pas été communiqué par l'annonceur.
Emplacement
Synthèse
A vendre Immobilier d'entreprise Locaux commerciaux - Boutiques
Saint-Nicolas-de-Port, Meurthe-et-Moselle (54), Lorraine
Prix de vente : 198000 €
Réactualisé le 01/04/2026
Référence CessionPME : 2001545
Demander plus d'informations sur ce bien
Prix médian en immobilier professionnel en Meurthe-et-Moselle 54, rubrique Locaux commerciaux - Boutiques
862 €/m²
Prix bas
1195 €/m²
Prix médian
2065 €/m²
Prix haut



